Silver bucket
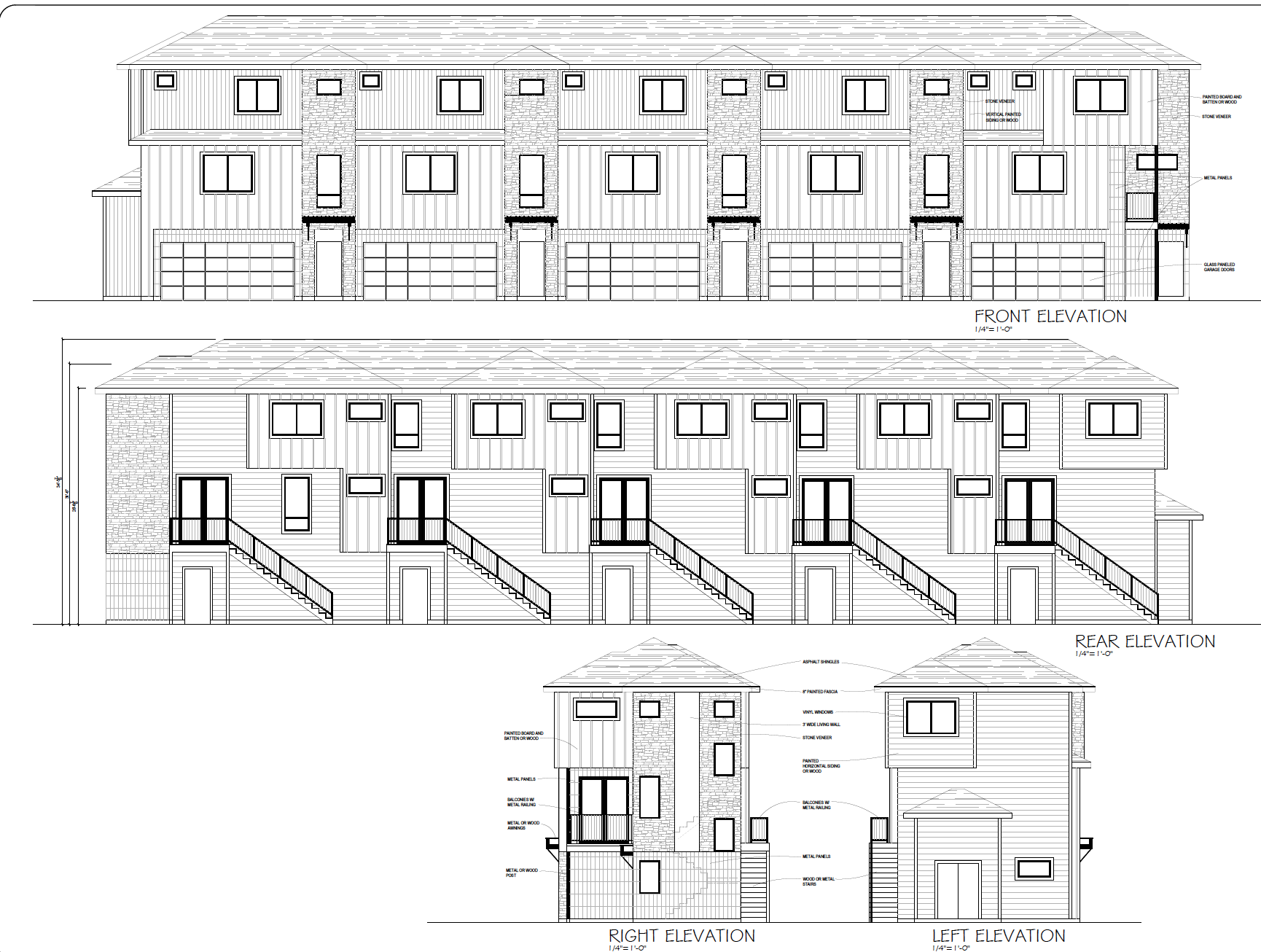
The Silver Bucket project consists of 17 multifamily units. Units are custom designed and feature 1 and 2 bedrooms product with some allowing for 2 master suites. All high end finishes as well. Each home has been maximized for functionality and bring all your outdoor toys with each unit having its own enclosed attached garage!
Minutes away from the Boise River & greenbelt, H2 Development Group is proud support the growth in Garden City and bring quality multi-family housing with our newest project in Silver Bucket.
project profile
Property Type: Multi-Family development totaling over 14,380 square feet of residential space.
Property Size: 17 unit multi-family project consisting of duplexes, 3-plex and 5-plex buildings.
Location: This multi-family development is located in Garden City.
Note: This project is still in the entitlement process and awaiting final approval from city. All renderings and plans subject to change.
One Bedroom Unit
Two Bedroom Unit
3-Plex Building
3-Plex Building
3-Plex Building
5-Plex Building
5-Plex Building
5-Plex Building
Duplexs
Duplexs
Duplexs
Duplexs